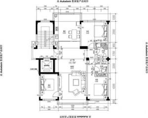
这个户型怎么样?房本面积159?
这个户型的房子怎样啊?还有为什么得房率那么低啊?到手只有九十五平,却买了是112平
这个户型不错啊,可以看出开发商还是挺有追求的,有专门针对户型做优化。 1、户型方正,使用率高,基本无面积浪费。 2、南北通透,采光通风都比较好。 3、客厅面宽达到了4米,非常不错,而且餐客一体,整体空间感会比较足。 4、整体户型赠送方面也不错,112㎡做到了三房,赠送面积比较多,性价比比较高。客厅及厨房皆带阳台,而且带入户花园,对于112㎡的户型来说非常不错了,居家十分实用舒适。 5、整体户型最大的缺点在厨房,虽然面宽有3米,但是进深只有1.2米,太短了,使用不便,只能打通生活阳台,纳入一部分面积来弥补了。 6、看户型可能很少有人会去关注空调机位,但是所以说这个开发商还是比较有追求的,空调机位这个户型怎么样,客厅卧室朝南,俩次卧朝北?
您好,我是睿宝,爱设计爱生活,每日解决家居、装修难题,关注行知,服务万家,很高兴回答您的问题!
关于这个户型怎么样,客厅卧室朝南,俩次卧朝北?

首先对于你的户型做个分析:
户型优点:
1、面积适中,结构合理。
2、布局舒展,尺度宽松,起居室与餐厅分布合理。
3、南北通透,采光通风良好,格局合理,有利于室内空气流通。
4、动静分区,功能分区合理,保证主人生活的私密性 卫生间布局合理。
5、房间面积都不错,室内空间利用率较高。
6、起居室与客餐厅完全隔离,互不干扰
卫生间:
1、比较方正空间紧凑
卧室:
1、卧室大飘窗,居家尽享尊贵人生
2、主卧空间开阔,朝南而向,保证采光,亲近自然
3、另外两卧朝北,全明通透,方正实用。
餐厅:
餐厅与厨房相临,备餐、用餐更便利。
缺点:
1、卫生间是否有窗户,有窗户的话更有利于通风
2、入户走廊空间较大,降低了利用空间
建议:
如果选择此户型,卫生间马桶如果可以改到浴室柜处更好,原来马桶处淋雨。
回答不易,如果觉得本文有帮助的话,请劳烦为小编点个赞,以示鼓励,如果觉得意见不足,欢迎大家发表评论,感谢阅读,欢迎收藏!

怎么判断户型好不好?

私信回复免费资料,看30000套家装案例
上周在悟空问答里回答了这样6个户型咨询问题,买房是件大事,自然很多人会四处去问“这个户型怎么样?怎么装修设计?”但是看了那么多户型点评,你能做基本的识别了吗?通过以下6个案例,以实例来教你怎么看户型?
(结尾有懒人福利,重点总结)
户型一

这个户型总体来说还是不错的,南北通透,采光好,但小缺点就是走廊空间有点长,您可以在走廊门前那一段做嵌入式的收纳柜,主卧洗手间在衣帽间里面可能使用率不会太高!这种隐藏在衣帽间的洗手间虽然让主卧更美观,但是可能你不会经常使用!
户型二

首先我看到的这个户型的缺陷是:1.客厅没有生活阳台,2.南北不通透,3.公共区域2个厕所什么意思呢,4.整体户型外观不太方正参差不齐5.从入户到卧室走廊空间太长
采光和功能分区做的还好!
户型三

户型采光还是比较好的,主要的客厅,主卧都朝南,厨房卫生间也都有开窗,但是南北不通透,可以在门上下功夫,安装防盗门能常通风。餐厅跟次卧是比较近的,建议次卧做门帘;室外跟室内公私没有很明显的隔断,需要做玄关隔断!
户型四

此户型南北通透,但是注意主卫没显示有开窗啊,从墙体性质来看,不是太好,没有一定量的非承重墙,不利于你后期的改造需求.
户型五

我先说一下有2点不太好
第一入户门正对厕所门,风水中开门见厕,迎来的是秽气,财气不好,可以通过在入户门放置绿色的旺气的植物,可以在卫生间的门上放上珠帘或者帘布这2种方法之一去化解;
第二点就是部分功能分区没做好,就是西南方向的那个卧室门是开向客厅的不太好,首先是动静分区不太好影响您的休息,然后呢一个在客厅可以看到您的卧室内部,公私分区也没做好!这个侧卧可以做客房,可以做为书房,如果家里人多需要这个做卧室,可以安装门帘做遮挡,选择隔音效果强的木门!
主卧室开间3.3,这个宽度确实有点小了,但是总面积大概21是不算小的,只是您的主卧偏长型的。
户型六

风水上不好的地方:1.次卧出门正对洗漱间镜子,开门见镜子不好,建议镜子改方向;2.入户门开门对卫生间,虽然没有正对卫生间的门,但这样风水也不是太好,可以厨房挂门帘,门口放绿植,或者入户门做玄关隔断;
南北不通透,各个空间的比例尺寸是否合适,客厅开间3.95比较合适,主卧开间3.95,面积大概是14平米,空间大小也合适;
看了以上6个案例,你知道怎么去看户型好不好了吗?懒人福利小结一下:
看整体形状是否方正,死角拐角不要太多
看各个空间的尺寸是否能满足基本功能,客厅开间>=3.8米,主卧开间>=3.6米,面积在12-25之间,开间进深比不超过1.5
看采光通风,是否南北通透
看是否做到功能分区:动静分区,干湿分离,公私分区
看墙体性质,保证一定比例的非承重墙
不要有基本的风水问题,比如穿堂煞,卧室门对镜子,大门对厕所门等
这个户型怎么样,优点和缺点?
突然发现这个户型不好布局 内容由好好住用户噢mg提供,更多问题来好好住APP和屋主直接交流吧~帮我看看这个户型怎么样?
新家的户型还算不错的,采光特别的好,南北通透的。装修风格选择了简约加点美式风格,装修完特满意特舒适,大家看看感觉如何,有没什么不足之处。

收纳柜上的装饰是小鹿,哈哈,不错吧,反正我是挺喜欢的!

餐厅就在厨房的外边,和厨房之间做了个推拉门,不敢做成开放式的啊,油烟太大,卫生难搞,大家懂的。餐厅的光线不错,边上刚好有个窗户,餐桌椅简单实用,还特地铺上了一层桌布,瞬间转换风格,背面的位置是餐边柜,特别棒,收纳功能满满的。


厨房面积还行,为了方便把冰箱放到里面了,但是也不显拥挤。厨房内东西都摆放整齐有序的,卫生也干净,上下的收纳柜满足厨房收纳需求,满意

厨房的光线还是很不错的

客厅,深色的家具搭配暖色调的布置,很暖心的设计。客厅光线也不错,整体上简单舒适

电视背景墙,很清新淡雅,超漂亮的

【主卧】

卧室装修很简单,纯白的设计,墙面用石膏线装饰了一下,效果还不错。


三个房间都不大,所以将其充分利用,做了许多的收纳柜与抽屉柜。
【小孩房】

小孩房,买了一张上下床,台阶也是可储物型的,非常实用。
【卫生间】

卫生间有个单独的淋浴空间,这样干湿分离效果比较好。










